Vickers Lane, Hartlepool, TS25

House - Semi-Detached 3 bedrooms 2 bathrooms

For Sale £170,000

Details

Full Description

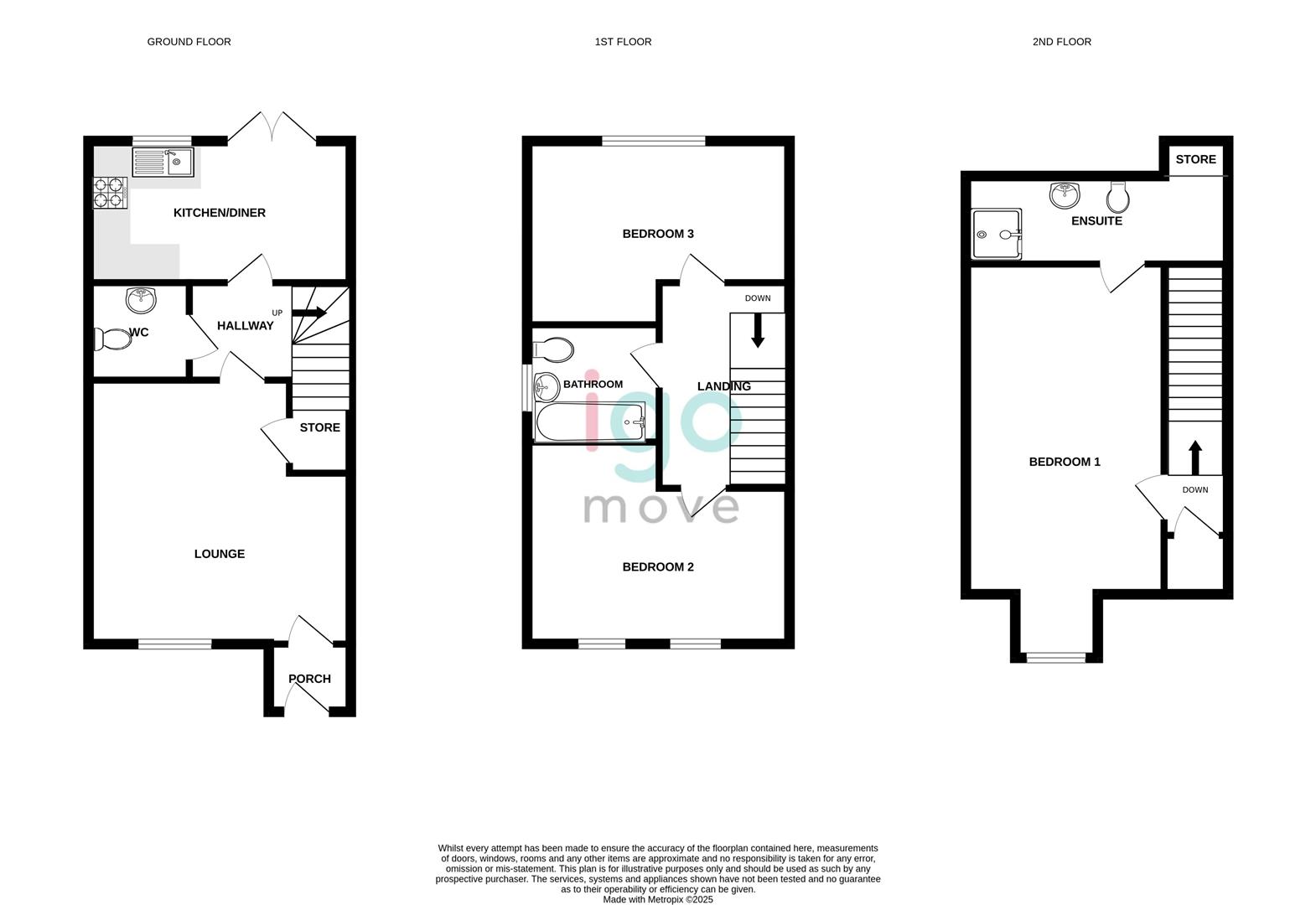
Igomove take pleasure in listing this three bedroom three story semi detached modern property located on a popular development within Seaton Carew, It offers several desirable elements which include; three good size double bedrooms, ( master with ensuite facilities), modern family bathroom, guest cloakroom, contemporary open concept kitchen diner, sizeable lounge, porch entry, South facing rear garden, two vehicle driveway, UPVC double glazing, gas central heating lovely decor, bespoke wall panelling, recently fitted carpets, freehold.

Contemporary facade, double driveway, entrance porch, front door into;

Spacious lounge entered via a glazed door, with window to the front elevation, under stairs storage cupboard, stylish decor.

Guest cloakroom comprising close coupled toilet and wash basin in white porcelain with chrome fittings, contemporary decor and flooring.

Turned staircase to the first floor accommodation.

Excellent high gloss white dining kitchen comprising contemporary wall, drawer and base cabinets, complimentary heat resistant work surfaces, stainless one and a half bowl sink with chrome mixer taps integrated gas hob, integrated electric oven, integrated washing machine, integrated dishwasher, integrated fridge freezer , breakfast bar, alternatively with space for a dining table, double doors opening to the rear garden, modern flooring, immaculately presented.

To the first floor;

Bedroom two is a double with twin windows to the front aspect, fitted wardrobes, contemporary decor.

Bedroom three is also of double proportions with window over looking the rear garden with fitted mirrored wardrobes, modern colour palette.

The modern family bathroom comprises bath, close coupled toilet and pedestal wash basin with chrome fixtures, modern flooring, immaculately presented.

To the second floor landing is a storage cupboard and access to;

Master double bedroom of superb proportions with fitted wardrobes, loft access, stylish decor and access to;

En suite shower room comprising large shower enclosure, close coupled toilet and pedestal wash basin in white porcelain with chrome fittings, velux window, pristine decor and contemporary flooring, complimentary tiling.

To the rear is a fully enclosed and family friendly South facing garden with lawn, modern fencing, patio area and shed.

Homes in this popular location, presented to this standard are always in demand, ensure you don’t miss out by contacting the Igomove team today.

Attractive modern facade, double driveway, porch entry into;

Good size lounge with window to the front elevation, custom wall panelling, excellent decor, fitted storage cupboard.

Hallway with turned staircase to the first floor accommodation.

Cloakroom comprising WC and wall mounted wash basin, tiled backsplash, pastel decor.

Open concept kitchen diner fitted with an array of larder, wall, base and drawer cabinetry, complimentary surfaces, integrated oven, integrated gas hob, integrated extractor, integrated fridge freezer, integrated dishwasher, one and a half bowl sink with chrome mixer tap, integrated washing machine, breakfast bar with ample dining space, French doors opening to the rear garden.

To the first floor;

Bedroom two is a sizable double with twin windows to the front elevation, pretty decor, fitted wardrobes.

Bedroom three is also double proportions and is located to the rear, neutrally presented with sliding fitted wardrobes.

Family bathroom which comprises bath, WC and wash basin with complimentary tiling.

To the second floor;

Boarded loft space.

Master double bedroom with window to the front of the property with fitted wardrobes and fitted storage which also benefits from;

Ensuite shower room comprising shower enclosure, WC and wash basin, fitted storage.

To the rear is an enclosed South facing garden laid to lawn with patio and shed, not directly overlooked therefore providing a great deal of privacy.

This immaculate family abode is situated in a popular area and Igomove encourage early viewing.

EPC

Floor Plans

Floorplan

Map

Related Properties

Kyle Avenue, Hartlepool, TS25

House - Semi-Detached 3 bedroom 2 bathroom

active £120,000

VACANT POSSESSION, NO CHAIN!! Igomove are happy to list this well presented three bedroomed semi detached house in a popular location. Offered with vacant possession it provides several desirable amenities which include three bedrooms (master with WC a......

Golden Meadows, Hartlepool, TS25

House - Semi-Detached 3 bedroom 2 bathroom

active £175,000

Igomove take pride in presenting this excellent three bedroom semi detached house on a modern development, situated close to all the amenities of Seaton Carew it also provides a wealth of desirable attributes which include; three good size bedrooms (ma......

Rosebay Close, Hartlepool, TS26

House - Semi-Detached 3 bedroom 2 bathroom

active £152,500

Igomove take pleasure in presenting to the market this excellent semi detached three bedroomed house in a modern style located in the ever popular Bishop estate area, It provides a wealth of desirable attributes such as; three double bedrooms (master b......

Blackthorn Meadows, Hartlepool, TS27

House - Semi-Detached 3 bedroom 2 bathroom

active £170,000

Igomove is delighted to present this modern three-bedroom semi-detached home, perfectly positioned on a fabulous plot in the favourable Hartwell Park development. Offering spacious & modern interiors and a landscaped garden, it’s an ideal choice for ......

Vickers Lane, Hartlepool, TS25

House - Semi-Detached 3 bedroom 2 bathroom

active £170,000

Igomove are pleased to list this superb three bedroomed modern, semi detached house located on a small development in the coastal Seaton Carew area, it offers several desirable key attributes including; Three double bedrooms (master with large en suite......